Building MEP BIM
MEP BIM Modeling Services
Backed by years of expert service experience from Haida Green Engineering Consultants (HGEC), we at Haida BIM are the most preferred choice among top industry contenders. Our services at Haida BIM are forged by the legacy set by HGEC’s unparalleled services in the industry.
We are a client-oriented company committed to delivering highly accurate and reliable 3D MEP BIM models that empower contractors, engineers, consultants, firms, and more. Our BIM solutions ensure seamless project execution by resolving interdisciplinary clashes, providing precise & coordinated BIM models, and streamlining cost estimations and workflows.
We produce custom Revit Families that are parametric and in the required LOD (100-500). We integrate industry standard formulas into MEP Revit Families to enhance accuracy of calculations and seamless interdisciplinary coordination.
Our MEP BIM Modeling Services Include

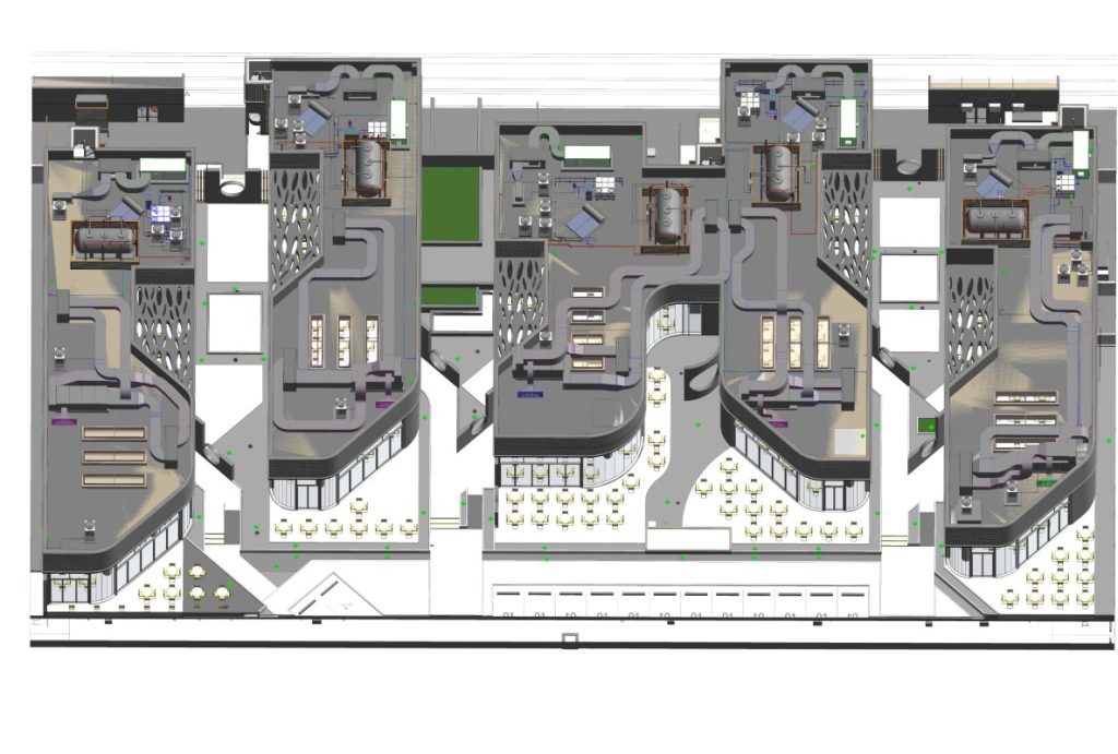
Mechanical System
- Model HVAC duct systems, air terminals, mechanical equipments with precision.
- Utilize automatic system creation tools for efficient duct routing.

Plumbing Systems
- Model plumbing components and assign them to supply or return systems.
- Optimize plumbing routing for efficient connections.

4D & 5D BIM
- Provide MEP 3D models for scheduling, cost estimation, and quantity take-off.
- Optimize project management and budgeting.

Electrical Systems
- Model lighting fixtures, cable trays, and electrical equipment and more.
- Coordinate electrical models with other trades for seamless integration.

Fabrication & Shop Drawings
- Develop LOD 400 content within Revit MEP Models to support fabrication and installation.
- Streamline fabrication and installation process.

MEP Content Creation
- Create parametric models and libraries of MEP components.
- Enhance project flexibility and efficiency.
Trades Of MEPFPS Modeling
We outsource our exceptional services to companies and firms.

Mechanical System
HVAC Equipment, Ducting, Cooling Towers, and more.

Plumbing & Sanitary System
Pumps, Sewage Systems, Water Tanks, etc.

External Works
Rooftop Systems, Building Exteriors, etc.

Electrical Systems
Panels, Transformers, Cable Trays, etc.

Fire Safety Systems
Fire Sprinklers, Piping, Smoke Curtains, etc.
STAGES OF BIM MODELING
STAGE 1: Load MEP BIM Template
We customize MEP BIM templates based on your standards for each trade.
STAGE 2: Verify the Architectural Model
We ensure the coordinate alignment between the architectural and MEP models.
STAGE 3: Prepare the MEP Model
We develop MEP Models for Mechanical, Electrical, Plumbing, and include all coordination elements.
STAGE 4: Run Clash Detection
We use Navisworks to detect clashes between coordinated models.
STAGE 5: Review and Resolve Clashes
We resolve clashes, verify solutions, and ensure that coordination is conflict-free.